Witam!
-Proponuję nowy temat, jako kontynuację tematu: Miejscowe połączenia wyrównawcze.
Połączenia wyrównawcze nie są błędem w sztuce.
Witam!
Połączenia wyrównawcze nie są błędem w sztuce, ale tylko pod warunkiem, gdy zgodnie z nią zostały wykonane.
Witam Kolegę Edwarda (EDI) i wszystkich Kolegów na FORUM.
Kolegi EDI, dlaczego w tym temacie “błędy w sztuce?”.
I o czym mamy dyskutować?
Może Kolega napisze o co mu chodzi?
Witam!
-Kolega Krzysiek (kkas12) słusznie napisał:
Połączenia wyrównawcze nie są błędem w sztuce, ale tylko pod warunkiem, gdy zgodnie z nią zostały wykonane.
-I właśnie o tę sztukę poprawnego wykonywania połączeń wyrównawczych mi chodzi.
-Do tej pory dowiedziałem się na Forum, że nawet w normach czy Prenormach są błędy, jeśli chodzi o połączenia wyrównawcze.
-Może w końcu się dowiem, gdzie jest to poprawnie narysowane lub opisane, jak należy wykonywać w/w połączenia wyrównawcze.
Witam!
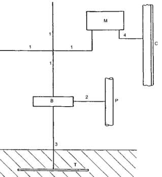
Coś mi tu nie pasuje. Czemu ma służyć to skrzyżowanie (pewnie połączenie) przewodów PE? Moim zdaniem przewody powinny „wychodzić” z GSU, lub od zacisku do zacisku.
Ale najbardziej dziwne jest podłączenie do części przewodzącej dostępnej z jednej strony przewodu PE a z drugiej strony poprzez dodatkowy przewód wyrównawczy części przewodzącej obcej.
Witam!
-Błędu nie popełniłem i rysunek (ideowo) jest zgodny z w/w normą.
[-Może ktoś porówna z rysunkiem z najnowszej normy (zastępującej w/w normę).]
P.S.
-Utworzyłem ten temat, kiedy zorientowałem się, że temat “Miejscowe połączenia wyrównawcze” , już zakończyłem, a poleciłem w nim dalszy udział Koledze (Peterka).
http://ise.pl/forum/viewtopic.php?t=6476&start=135
(-Z tego powodu wykonałem i wstawiłem powyższy rysunek.)
Witam
-
Przedstawiony rysunek nie jest przykładem wykonania instalacji, a służy tylko
do pokazania nazewnictwa przewodów na przykładzie połączeń. Nie doszukałem
się na tym rysunku niejasności. Dobrze jest nie mieszać terminów. -
Co oznacza termin połączenie wyrównawcze można znaleźć w PN-IEC 60050-826.
-
Połączenie wyrównawcze samo w sobie nie jest środkiem ochrony przeciwporażeniowej,
a jedynie jej uzupełnieniem dlatego przewód wyrównawczy nie łączy się bezpośrednia z
przewodem ochronnym (PE) lecz poprzez GSU lub część przewodzącą dostępną.
Moim zdaniem każdy z kolegów ma trochę racji lecz nadal nie widzę zasadniczego problemu
poza jednolitym nazewnictwem.
Witam!
Przedstawiony rysunek nie jest przykładem wykonania instalacji, a służy tylko do pokazania nazewnictwa przewodów na przykładzie połączeń
Zgadza się, ale właśnie takie rusunki powinny być jasne i czytelne. Rura wodna jest też częścią przewodzącą obcą. Rurę połączono bezpośrednio z GSU, natomiast inną część przewodzącą obcą połączono w taki sposób, że obudowę jakiegoś urządzenia potraktowano jako przewód wyrównawczy. Ale to urządzenie dziś jest a jutro może go nie być.
Witam
Właśnie ten rysunek jest jasny i czytelny co do tego jak nazywać jaki przewód.
Nie jest to rysunek montażowy więc uwagi kolegi są bezzasadne.
Witam wszystkich Kolegów na FORUM.
Kolega EDI narysował ładny rysunek. Ja załączę tylko scan z PN-IEC 60364-5-54:1999
z opisem:
1 = przewód ochronny
2 = przewód wyrównawczy główny
3 = przewód uziemiający
4 = przewód wyrównawczy dodatkowy
Zgodnie z PN-EN 60445 przewody oznaczamy:
a. przewód ochronny = PE
b. przewód uziemiający = PEM lub PEL
c. przewód uziemienia funkcjonalnego = FE
d. przewód połączenia wyrównawczego funkcjonalnego = FB
I tutaj nasuwa mi się pytanie “które przewody z rysunku, jak oznaczyć?”
Ad. b. Nie wiem czym się PEM od PEL? Definicja znajduje się w IEC 60050-195 lecz normy tej nie posiadam.
A gdzie jest miejsce na miejscowe połączenia wyrównawcze w IT, przecież nie zawsze powinno być to podpięte do PE czy GSW, taka sala operacyjna, baseny z urządzeniami elektrycznymi, niby proste ale zaczynają się schody.
Witam!
-Na początku proponuję zająć się układami TN (TN-C, TN-C-S i TN-S).
-Te układy spotykamy w naszych domkach czy mieszkaniach.
Witam!
Co oznacza termin przewód wyrównawczy?
-Na podstawie PN-91/E-05009/2 [idt IEC 50(826)-1982] 826-05-01:
“Przewód wyrównawczy - przewód ochronny zapewniający wyrównanie potencjałów.”
P.S.
-Może ktoś poda definicje PEM i PEL z w/w normy.
Witam Szanownych Kolegów na Forum
Niestety w tej chwili nie mam tych definicji tłumaczonych.
W oryginale brzmią one tak:
PEM conductor
PEM-Leiter
IEV number: 195-02-13
conductor combining the functions of both a potective earthing conductor and a mid-point conductor
PEL conductor
PEL-Leiter
IEV number: 195-02-14
conductor combining the functions of both a potective earthing conductor and a line conductor
Dla łatwiejszego “rozpracowania” powyższych załaczam jeszcze dwie:
mid-point
Mittelpunkt
IEV number: 195-02-04
common point between two symmetrical circuit elements the opposite ends of which are electrically connected to different line conductors of the same circuit
line conductor; phase conductor (AC) (deprecated); pole conductor (DC) (deprecated)
Außenleiter
IEV number: 195-02-08
conductor which is energized in normal operation and capable of contributing to the transmission or distribution of electric energy but which is not neutral or mid-point conductor
Pozdrawiam
Teodor
Witam Kolegę Teodora i wszystkich Kolegów na FORUM.
Wg mojej słabej znajomości angielskiego przetłumaczyłby to następująco:
PEM = Przewód pełniący funkcje przewodu uziemiającego oraz ochronnego podłączony do środkowego punktu zasilania.
PEL = Przewód pełniący funkcje przewodu uziemiającego oraz ochronnego podłączony do jednej z linii zasilania.
Z czego wnioskuję że oznaczenia takie mają zastosowanie w sieciach prądu stałego jak na rysunku.
Co Koledzy na to - czy mam rację?
Witam!
-Przewody PEM i PEL możemy sobie odpuścić, bo nie dotyczą instalacji prądu przemiennego.
-Pozostają nam przewody:
-Może ktoś poda definicje w/w przewodów.
Witam Szanownych Kolegów na Forum
FE
Przewód uziemienia funkcjonalnego
IEV number: 195-01-13
functional earthing; functional grounding (US)
Funktionserdung
earthing a point or points in a system or in a installation or in equipment, for purposes other than electrical safety
FB
Przewód połaczenia wyrównawczego funkcjonalnego
IEV number: 195-01-16
functional-equipotential-bonding
Funktionspotentialausgleich
equipotential bonding for operational reasons other than safety
Odnośnie przewodu środkowego - może to dotyczyć instalacji amerykańskich, gdyż tam, o ile się nie mylę mają zastosowanie transformatory zasilające instalacje o napięciu wtórnym 2 x 110 V z uziemionym środkiem.
Pozdrawiam
Teodor
Witam Kolegę Teodora i wszystkich Kolegów na FORUM.
Czy na pewno jest takie słowo " poupose"?


